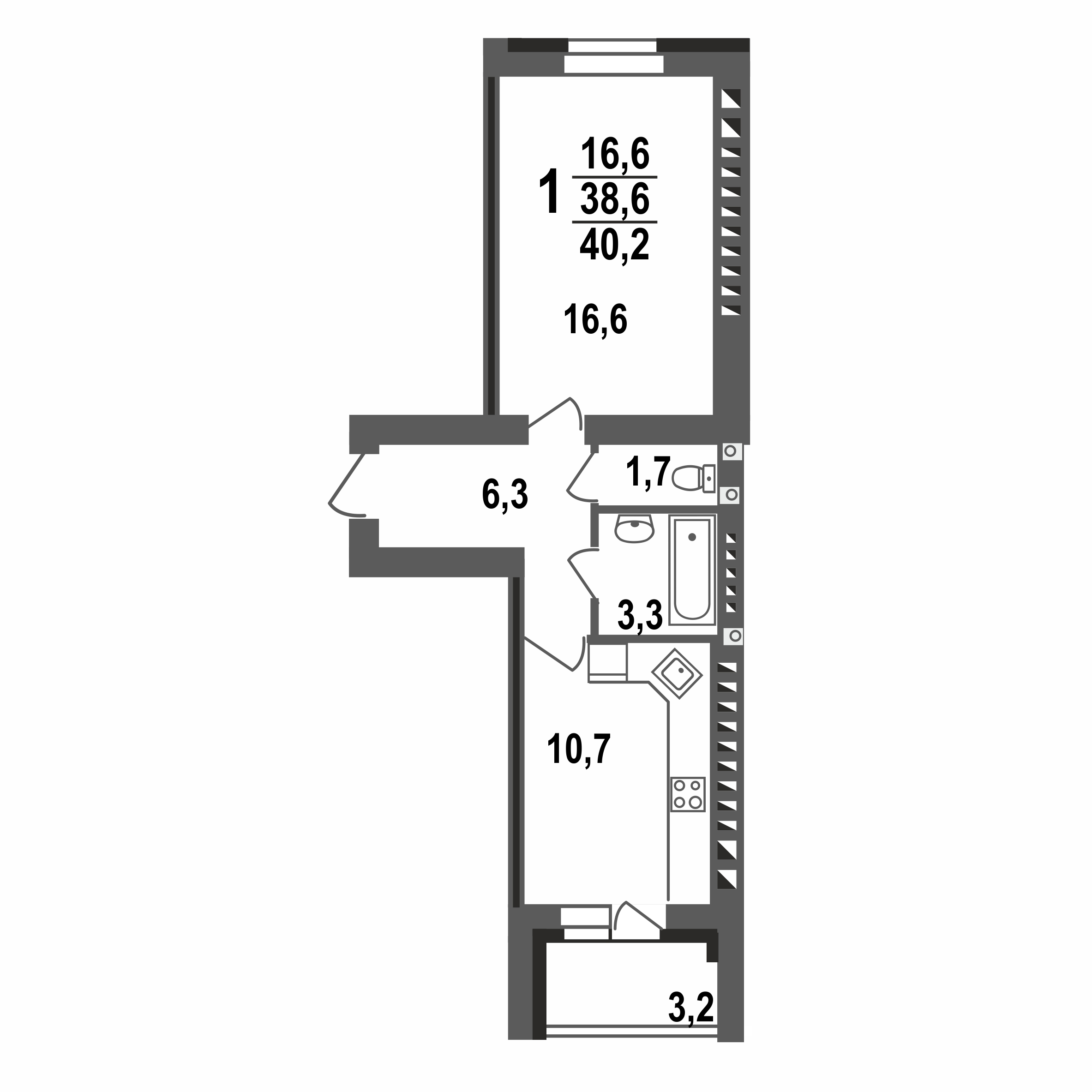
1-комнатная
40.2 м²
Квартира №51Комнатность
1-комнатная
Проект
Микрорайон Славный
Дом
ЖК Свобода в Славном
Этаж
3/5
Срок сдачи
Дом сдан
Отделка
Черновая отделка
Секция
3
Площадь кухни
10.7 м²
Тип санузла
1 раздельный
Отопление
Индивидуальное отопление
Дополнительно
Ипотека и Рассрочка
Ипотека
5,4%
Ставка
0 ₽/мес
Ваш ежемесячный платеж
*Расчет выполнен приблизительно
