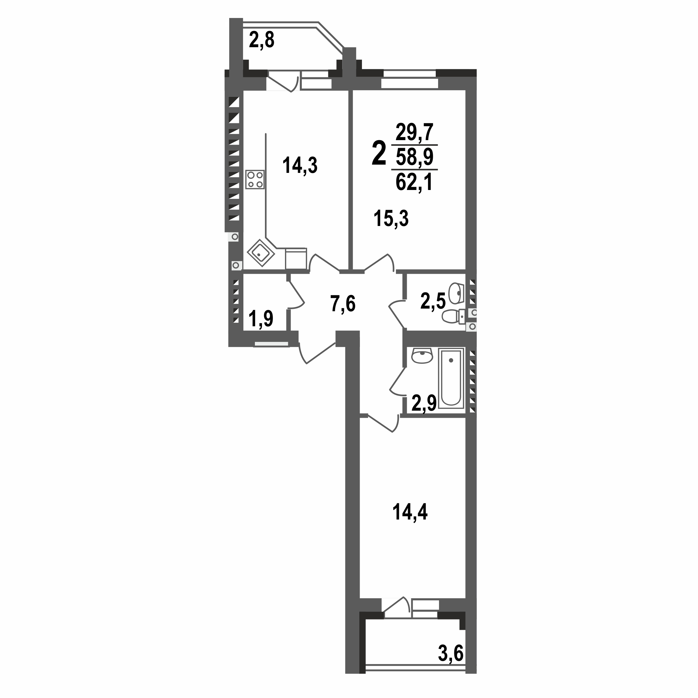
2-комнатная
62.1 м²
Квартира №32Комнатность
2-комнатная
Проект
Микрорайон Славный
Дом
ЖК Свобода в Славном
Этаж
3/5
Срок сдачи
Дом сдан
Отделка
Черновая отделка
Секция
2
Площадь кухни
14.3 м²
Тип санузла
1 раздельный
Отопление
Индивидуальное отопление
Дополнительно
Ипотека и Рассрочка
Ипотека
5,1%
Ставка
0 ₽/мес
Ваш ежемесячный платеж
*Расчет выполнен приблизительно
